U cilju poticanja razvoja komunalnog gospodarstva i ujednačavanje komunalnog standarda na području jedinica lokalne samouprave, ministar graditeljstva i prostornoga uređenja je donio u ožujku Odluku o raspisivanju javnog poziva za sufinanciranje projekata gradova i općina za poticanje razvoja komunalnog gospodarstva i ujednačavanje komunalnog standarda u 2018. godini. Općina Petrijanec prijavila je dva projekta a Odlukom ministra Predraga Štromara odobrena su sredstva od 405.000,00kn.

Građevinski zahvat očekuje vatrogasno – društveni dom u Družbincu, kojeg koristi DVD Družbinec. Naime, temeljem prijave projekta na natječaj Ministarstva graditeljstva i prostornog uređenja, odobreno je 405 tisuća kuna za rekonstrukciju zgrade u potpuno obnovljeni, komunalno opremljeni energetski učinkovit i funkcionalan objekt vatrogasno društvene namjene. Objekt u Družbincu se neće samo sanirati i obnoviti već će se i dograditi što će mu povećati funkcionalnost, praktičnost, a vatrogascima dati bolje uvjete rada i boravka.

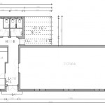
Postojeća zgrada vatrogasno-društvenog doma javna je zgrada vatrogasno – društvene namjene ukupnih tlocrtnih dimenzija 32,90 x 6,70m i površine 211,50m². Zgradu koristi DVD Družbinec koje u navedenoj zgradi ima garažu za vatrogasno vozilo i spremište opreme. Zgrada se sastoji i od manje dvorane za druženje koju koriste i druge udruge kao i svi mještani naselja Družbinec. Zgrada je trenutno energetski neučinkovita i nefunkcionalna. Uz zgradu nalazi se nerazvrstana cesta Ul. Alojzija Stepinca.

Cilj projekta je rekonstrukcija navedene zgrade u potpuno obnovljeni, komunalno opremljen, energetski učinkovit i funkcionalan komunalni objekt vatrogasno-društvene namjene.

Glavne aktivnosti na projektu su:

a) uklanjanje prostorija spremišta DVD-a uz garažu vatrogasnog vozila na sjevernom pročelju,

b) uklanjanje prostorija sanitarija uz dvoranu na južnom pročelju,

c) planiranje prostorije spremišta u sektoru uklonjenih sanitarija

d) dogradnja istočnog pročelja: dogradnja garaže vatrogasnog vozila, rekonstrukcija kuhinje, formiranje centralnog ulaza za korisnike i komunikacija, formiranje prostorija DVD-a i sanitarija, te natkrivene terase,

e) nadogradnja kosog krovišta iznad rekonstruiranog dijela zgrade nadozidom 100cm,

f) izvedba energetski učinkovitog fasadnog sustava, Planirano vrijeme realizacije je od lipnja do studenog 2018. godine.

Planirana vrijednost projekta ili godišnje aktivnosti na projektu u 2018. godini: 1.056.997,80 kuna (od tog iznosa sufinancirano je 405.000,00kn).

Izrađen je glavni projekt – arhitektonski projekt, troškovnik građevinsko – obrtničkih radova, ishođena građevinska dozvola te su rebalansom osigurana sredstva u proračunu.

Predviđeni učinak projekta i očekivana dodana vrijednost: potpuno obnovljena i proširena zgrada vatrogasno-društvene namjene sveukupnih tlocrtnih dimenzija 30,20 x 6,90m + 15,30 x 4,25m, ukupne površine 274,0 m² – proširenje. Dogradnja istočnog pročelja tlocrtnih dimenzija 4,35 x 11,28m zatvorenog prostora plus 4,0 x 4,35m natkrivene terase. Dogradnja spremišta u sektoru uklonjenih sanitarija tlocrtnih dimenzija 4,37 x 6,90m visine 3,3m do vijenca te 5,65m do sljemena.

 

Loader Loading...
EAD Logo Taking too long?

Reload Reload document
| Open Open in new tab

Preuzimanje [59.18 KB]

×